Bauernhof im Odenwald? Platz für Ihr Hobby oder Ihren Betrieb? Werden Sie kreativ in Reichelsheim!
Beschreibung:
Vielfältige Möglichkeiten zentral in Reichelsheim!Dieser ehemalige Bauernhof wartet auf Ihre Ideen: Ob Sie ein neues Domizil für Ihre große Familie benötigen, oder genug Platz für Ihr Gewerbe/Werkstatt/Hobby brauchen, hier finden Sie eine gute Grundlage für die Umsetzung Ihrer Ziele.
Das 1.332 m² große Grundstück wäre auch für eine Neubebauung mit Mehrfamilienhäusern oder betreutem Wohnen geeignet. - Kein Denkmalschutz!
Machen Sie sich am besten selbst ein Bild!
Lagebeschreibung:
Die Immobilie befindet sich zentral in Reichelsheim. Für Familien mit Kindern ist die Lage ideal, da mehrere Kindergärten in unmittelbarer Nähe liegen. Auch die Reichenberg-Schule und die weiterführende Georg-August-Zinn-Schule ist nur einen kurzen Spaziergang entfernt, was den täglichen Schulweg für die Kleinen sehr angenehm macht.Für die Freizeitgestaltung stehen mehrere Spielplätze in der Umgebung zur Verfügung, die in wenigen Minuten zu Fuß erreichbar sind. Sportstätten mit einem regen Vereinsleben und das Reichelsheimer Freibad bieten zahlreiche Möglichkeiten für sportliche Aktivitäten.
Die Nahversorgung ist durch Supermärkte wie Aldi, Netto, PENNY und EDEKA, die sich in der Nähe befinden, bestens gewährleistet. Auch Bäcker und kleinere Fachgeschäfte im Ortskern sind schnell erreichbar, was den täglichen Einkauf erleichtert.
Eine gute Anbindung an den öffentlichen Nahverkehr ist durch die nahegelegene Bushaltestelle gegeben, die nur wenige Gehminuten entfernt ist. Für die gesundheitliche Versorgung sind Arztpraxen und Zahnärzte in der Nähe vorhanden.
Die Umgebung bietet zudem eine Auswahl an Restaurants, Eiscafés, Pizzerias und Dönergrills.
Insgesamt bietet die Lage eine hervorragende Infrastruktur für Familien, die Wert auf eine kinderfreundliche Umgebung und eine gute Nahversorgung legen.
Ausstattung:
Energieausweis:
- A+
- A
- B
- C
- D
- E
- F
- G
- H
- Baujahr:
- 1922
- Endenergiebedarf:
- 229,48 kWh/(m²a)
- Endenergieverbrauch:
- 229,48 kWh/(m²a)
- Energieausweis:
- Bedarfsausweis
- Energieeffizienzklasse:
- G
- Energieausweis gültig bis:
- 06.11.2035
- wesentlicher Energieträger:
- Elektro
- Baujahr lt. Energieausweis:
- 2009
Ausstattungsbeschreibung:
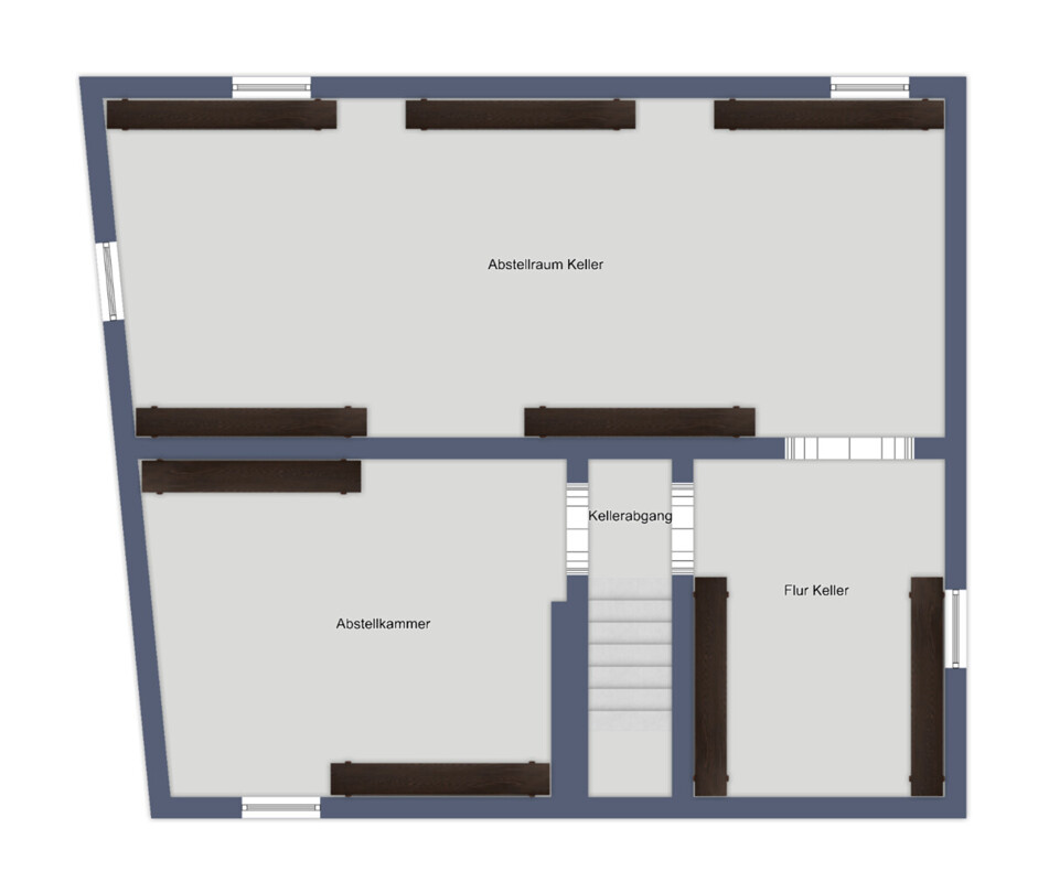
Wohnhaus (ehemalige Gastwirtschaft im EG, jetzt 3 Wohnetagen und ausgebauter Dachboden, alter Gewölbekeller):Baujahr ca. 1922, Sanierungen ab den 1980er Jahren
Massive Steinbauweise und Fachwerk
ca. 200 m² Wohnfläche
9 Zimmer + bewohnbare Fläche im Dachboden
2 Bäder und 2 separate WCs
2 Küchen
Innenausstattung hauptsächlich aus den 60er und 80er Jahren
Holzdielen, doppelverglaste Holzfenster aus den 80ern
Elektrik und Installationsrohre aus den 50er Jahren, nachgerüstet bis 2010 (Bad und Elektrik für Elektroheizung/Wärmepumpe/Klimageräte)
Scheune:
Fachwerk, 17 x 8 m Außenmaße
ehemalige Stallungen im EG, Heuboden und Lager im DG
Dachfläche mit Photovoltaikanlage von 2007, 16 KWp Leistung
Garage/Nebengebäude:
massiv gebautes Nebengebäude als Garage für Maschinen, Anhänger und Werkstatt + Lagerfläche, 12 x 6 m Außenmaße
überdachte Anbauten für PKW und Kleintierställe,
15 x 6 m Außenmaße
Grundstücksanteil Hoffläche (bebaute Fläche und Freifläche Hof): 725 m²
Gartenfläche/bebaubare Fläche hinter der Scheune: 607 m²
Sonstige Angaben:
Jeder RE/MAX Lizenz- oder Franchisenehmer ist ein rechtlich eigenständiges Unternehmen.Diensteanbieter im Sinne des Telemediengesetzes (TMG):
Volker Gruch
Staatsstr. 2, 64668 Rimbach/Odenwald Tel: 06253-9476500,
Email: volker.gruch @ remax.de, www.remax.de/volker-gruch
Aufsichtsbehörde: Landratsamt Heppenheim, Gräffstr.5, 64646 Heppenheim
UST-ID: DE255314305
Verbraucherinformationen:
Online-Streitbeilegung gemäß Art. 14 Abs. 1 ODR-VO: Die Europäische Kommission stellt eine Plattform zur Online-Streitbeilegung (OS) bereit, die Sie hier finden: <a href="http://ec.europa.eu/consumers/odr/"> http://ec.europa.eu/consumers/odr/ </a>.
Es wird ausgeübt: Maklertätigkeiten gem. §34c GewO: Erlaubnis zur Vermittlung des Abschlusses und Nachweis der Gelegenheit zum Abschluss von Verträgen über Grundstücke, grundstücksgleiche Rechte, Wohnräume und gewerbliche Räume.
Sie wollen mehr erfahren?
Wenn Sie uns eine Nachricht über das Kontaktformular senden, melden wir uns schnellstmöglich bei Ihnen:





























